Видео: Пруд своими руками: дешево и быстро
Далее по периметру дна нужно уложить камни, на которые, в свою очередь, нужно положить арматуру.
Камни не должны быть слишком маленькими, размер каждого должен доходить до 6 – 7 см в диаметре. В качестве арматуры можно использовать старые решетки для окон, которые нужно будет распилить под размеры выкопанной ямы.
Для будущего слива около будущего пруда нужно выкопать сливную яму или использовать уже имеющуюся. На дне нужно установить трубу, которая будет случить отводом старой воды в сливную яму.
Вы сможете в любое время поменять воду, просто открыв кран. Но если все же нет желания устанавливать слив, то воду всегда можно будет сменить с помощью насоса.
Далее следует процесс бетонирования.
Также интересно прочитать про лучшие породы гусей
Сначала бетоном нужно будет залить дно, а после высыхания пола – и стены. Желательно покрыть все поверхности будущего водоема грунтовкой, чтобы максимально обезопасить их от пагубного воздействия воды.
Качество материалов не должно быть очень плохим, так как из-за сильных морозов зимой по бетону могут пойти трещины, а это может стать причиной разрушения всей конструкции. При желании можно покрыть дно и стены материалом для более эстетичного внешнего вида.
Когда все материалы достаточно высохнут, то можно спокойно наливать воды в водоем и запускать туда птиц. Около этого небольшого озера можно посадить различные кусты, зелень с которые птицы будут ощипывать и потреблять в пищу.
Воду из этого озера можно будет использовать в качестве удобрений для Вашего огорода. Жидкость в озере нужно будет менять по мере загрязнения, но не стоит слишком откладывать этот процесс, так как в воде будет создаваться благоприятная среда для развития бактерий.
Свое небольшое озеро, в котором птицы смогут купаться, благоприятно повлияет на плодовитость гусей и уток.
Молодняк будет развиваться быстрее и гармоничней.
Теперь стало ясно, что сделать пруд для птиц своими руками не так сложно, как кажется на первый взгляд.
Просто помните, что наличие такого резервуара с водой пойдет Вашей живности только на пользу.
aquariumfan.ru
Необходимые инструменты и из чего можно сделать водоём
Для постройки пруда, в первую очередь, необходима лопата. Именно с помощью неё будут формироваться изначальная форма и размеры будущего водоёма. Если предполагается возведение конструкции «с нуля», необходим будет шпатель, а к материалам добавятся: кирпичи, замазка для кладки, цемент и грунтовка.
Важно! Чтобы не приходилось часто убирать грязь с придомовой территории, которая образуется после принятия домашними птицами «водных процедур», водоём желательно разместить как можно дальше от жилых построек. При желании, для получения более декоративного внешнего вида необходимы водостойкая краска, кисть или малярный валик. Для упрощения создания бассейна можно воспользоваться одной из лучших «заготовок» — старой ванной
Её внутреннее пространство выступит в качестве дна и стен бассейна, которые надёжно будут удерживать воду внутри предоставленного объёма. Если под рукой старого сантехнического оборудования нет, можно воспользоваться пластиком, полиэтиленовой плёнкой или даже тракторной покрышкой
Для упрощения создания бассейна можно воспользоваться одной из лучших «заготовок» — старой ванной. Её внутреннее пространство выступит в качестве дна и стен бассейна, которые надёжно будут удерживать воду внутри предоставленного объёма. Если под рукой старого сантехнического оборудования нет, можно воспользоваться пластиком, полиэтиленовой плёнкой или даже тракторной покрышкой.
При желании, для получения более декоративного внешнего вида необходимы водостойкая краска, кисть или малярный валик. Для упрощения создания бассейна можно воспользоваться одной из лучших «заготовок» — старой ванной. Её внутреннее пространство выступит в качестве дна и стен бассейна, которые надёжно будут удерживать воду внутри предоставленного объёма. Если под рукой старого сантехнического оборудования нет, можно воспользоваться пластиком, полиэтиленовой плёнкой или даже тракторной покрышкой.

Как сделать водоем
Для гусей и уток в домашних условиях можно сделать живописный водоем.
Маленький гусиный пруд
Пруд для гусей выкапывается своими руками. Для гусыни с выводком или уточки с селезнем и их потомства подойдет небольшой бассейн с глубиной до полуметра. Мелкий водоем быстрее прогревается, тогда в нем сможет плескаться любой маленький гусенок или утенок.
У пруда должен быть хотя бы один пологий спуск, для удобного доступа поголовья к воде.
Удержать воду в яме возможно, засыпав ее дно толстым слоем глины. Затем глина трамбуется и присыпается песком.
Строительство пруда
Следующий способ задержки воды – с использованием гидроизоляционного материала. Дно ямы устилается плотной полиэтиленовой пленкой в два слоя или геомембраной (достаточно крепкий материал, но стоит дороже ПХВ пленки).
Края пленки на берегу фиксируются камнями. Пленка присыпается землей, чтобы птицы не порвали ее лапками.
Теперь можно водоем наполнять водой. Ежедневно нужно доливать воду в пруд.
Периодически можно добавлять в воду ряску, птицы ее едят с удовольствием и получают свою дозу зеленого корма.
Готовый пруд
Простой птичий пруд из шифера
Определившись с местом, производится разметка участка. Удобнее делать такой водоем прямоугольной или квадратной формы.
Ход работ:
- С помощью кольев и натянутого шнура намечают контур будущего пруда.
- Потом снимается верхний слой грунта на отмеченном участке. Глубина ямы равна ширине шифера. Землю желательно сразу выносить как можно дальше от пруда, иначе птицы еще до того, как закончится строительство, разнесут ее по всему участку. Рядом выкапывается равная по объему сливная яма.
- Между ямами прокапывается траншея, в нее ложится (с уклоном) сливная труба.
- С помощью уровня выравнивается дно купальни.
- Затем листы шифера прислоняются к боковым поверхностям ямы и фиксируются металлическими прутками, обрезками труб или уголками (путем забивания их в землю). Закрепление стен позволит сохранить размеры пруда. Иначе птицы своими водными процедурами быстро разнесут его берега вширь, в результате чего он обмельчает.
- В заключительной части строительства укрепляют верхние края пруда и (при желании) декорируют.
Купальня из шифера
Не стоит забывать и о путях подхода к водохранилищу. Можно проложить дорожку из кирпичного лома.
Пруд для водоплавающей птицы
Построить большой водоем собственноручно уже гораздо сложнее в физическом и финансовом отношениях.
Большой пруд
Для подобного сооружения нужно будет:
- Выбрать место.
- План (чертеж).
- Обустроить сливную систему, согласно всем нормам.
- Провести большой объем земельных работ (скорее всего, придется нанимать специальную технику).
- Для покрытия дна и стен бассейна бетоном используют бетономешалку или покупают уже готовый бетон.
Пошаговое руководство:
- Выкапываются котлован нужного объема, траншея для сливной трубы и сливная яма (емкостью, равной объему будущего бассейна).
- Дно выкладывается камнями и арматурой.
- Фиксируется сливная труба.
- Основание бассейна заливается цементным раствором.
- После полного высыхания дна приступают к заливке стен (при помощи опалубки).
- Когда бетон схватится и высохнет, его грунтуют специальным раствором для удлинения срока эксплуатации.
- Борта водоема закрепляются, чтобы пернатые их не повредили.
Этап возведения стен
Простой вариант из шифера
Водоем для уток своими руками располагают подальше от курятника и деревянных сооружений, чтобы дерево не страдало от влаги, и куры, которые не умеют плавать, проходили на удалении от него. Если птиц достаточно много, оптимальными считаются размеры 3Х2 м, но глубины достаточно и полуметровой. Никаких особых сложностей в том, как сделать пруд для уток своими руками нет. Нужны:
- яма для основного водоема, неглубокая, но широкая;
- пологие берега, которые хорошо удерживают пластиковую пленку;
- ровное дно для укладки листов шифера;
- труба для слива грязной воды;
- сливная яма емкостью не менее, чем емкость сооружаемого водоема.
Из материалов потребуются труба, шифер, и пленка больших размеров и хорошего качества (новая и плотная). Из инструментов – лопата, или механизированные средства (в зависимости от габаритов) для рытья земли, инструмент для крепления шифера. Решая, как сделать пруд, следует учитывать количество птиц в хозяйстве. Укрепление берегов пруда шифером производится в обязательном порядке, потому что утка — птица прихотливая, и способна, в стае, за несколько дней увеличить размер пруда наполовину.
Землю, которая скапливается при рытье пруда на глубину, лучше отвозить подальше от места строительства, потому что прежде, чем пруд успеют построить, птицы растащат ее по всему участку.
Водоем для уток своими руками в хозяйстве, где их количество не превышает ста штук – достаточно простое, хотя и трудоемкое занятие. Сооружение слива позволит регулярно менять воду в пруду, и давать возможность птицам с охотой в нем поплавать. Специалисты считают, что на шифер на дно необходимо класть глину и камни, это способствует более длительной эксплуатации импровизированного сооружения, а если нет возможности делать слив, то воду можно откачивать с помощью насоса.
Как сделать домик для уток на воде своими руками?
Чтобы птице было более комфортно на пруду, можно установить плавающий домик для уток и гусей прямо на воде. Сделать это не намного сложнее, что соорудить обычный скворечник. В ход пойдет все, что имеется в наличии.
Плавающая платформа для домика для уток или гусей
Для работы понадобятся следующие инструменты и материалы:
- шуруповерт и горсть саморезов;
- деревянный поддон б/у (можно купить за 100-150 рублей на ближайшем оптовом рынке);
- обрезки досок;брус для каркаса;
- кровельный материал (мягкая черепица, профлист, ондулин и т.п.);
- 5-литровые пластиковые бутылки из под воды — 4 штуки;
- уголки — 4 шт.;
- капроновая веревка для якоря и крепления бутылок к поддону;
- кирпич или другой груз, который можно использовать в качестве якоря.
Процесс изготовления плавучего домика состоит из трех этапов:
- Создание плавучей платформы. Делается это очень просто: к нижней стороне поддона достаточно привязать 4 бутылки.
- Сборка Домика. Размеры и форма выбираются произвольно. Самое главное, чтобы при его установке по всему периметру платформы оставался бортик. Во-первых, это нужно для птицы, во-вторых, так конструкция будет более устойчивой на воде. Для изготовления домика не рекомендуется использовать фанеру, поскольку при контакте с водой она разбухает.
- Установка домика на платформу. Его устанавливают на середину импровизированного плота и закрепляют при помощи уголков и саморезов.
Строительство домика на четырех водоплавающих птиц
Полезные советы по обустройству водоема для уток и гусей
Основной способ обустройства искусственного водоема для уток — посадка растений. С северной стороны пруда рекомендуется высаживать густые и более высокие деревья и кустарники, на южном берегу размещают низкорослые культуры. Это защитит птицу от холодного ветра и обеспечит рациональный прогрев воды.
Высадку глубоководных растений (кувшинка, кубышка, шелковник и т.п.) необходимо производить в контейнерах, ящиках или корзинах.
Не стоит забывать о растениях-оксигенераторах, которые способствуют естественному очищению воды и насыщению ее кислородом. Наиболее подходящими для пруда с утками станет роголистник и эродея.
Как сделать пруд для гусей, уток: фото, видео
Пруд для гусей своими руками, как правильно сделать пруд для гусей и уток, и не превратить его в болото, мой опыт постройки пруда для гусей.
Исходя из своего опыта скажу, что гуси и утки намного лучше растут и меньше болеют если у них есть водоем для купания. Конечно можно обойтись и без пруда, поставить ёмкость с водой и все, но ведь сделать небольшой пруд не сложно и затрат практически никаких.
К тому же если в него запустить ряску, то гуси будут обеспечены дополнительным зелёным кормом, поэтому если у вас есть место на участке, можно соорудить на нём водоем для гусей.
Прежде всего, перед постройкой пруда хочу обратить ваше внимание на некоторые нюансы. Проточная вода
Гуси очень быстро загрязняют пруд, и если воду не обновлять, то она зацветёт и ваш пруд очень быстро превратится в болото
Гуси очень быстро загрязняют пруд, и если воду не обновлять, то она зацветёт и ваш пруд очень быстро превратится в болото
Проточная вода. Гуси очень быстро загрязняют пруд, и если воду не обновлять, то она зацветёт и ваш пруд очень быстро превратится в болото.
Поэтому в первую очередь нужно обеспечить сток и периодически подачу воды, сделать это можно с помощью насоса для полива огорода.
Выбираем место под пруд. Оптимальным вариантом будет расположить водоем для гусей на окраине участка, если есть природное углубление, яма или балка, имеет смысл соорудить в этом месте водоем.
При сооружении пруда не обойтись без земляных работ, понадобится выкопать яму, размер зависит от планируемой величины самого водоёма. Для гусей и уток будет вполне достаточно небольшого пруда с глубиной не более полуметра. Вода в мелком водоёме будет быстрее прогреваться, что позволит запускать в воду и маленьких утят.

Пруд для гусей должен иметь хоть один пологий берег чтобы птица могла спокойно заходить и выходить из воды.
Обратите внимание! Если в пруде помимо взрослых гусей ещё будет купаться молодняк, например, утка с утятами, то нужно обязательно предусмотреть пологий спуск, чтобы утята смогли выбраться из пруда. Теперь нужно подумать, как задержать воду в яме, если у вас болотистая местность, то уровень воды будет долго держаться в пруду, его нужно только наполнить водой и периодически её подливать
Теперь нужно подумать, как задержать воду в яме, если у вас болотистая местность, то уровень воды будет долго держаться в пруду, его нужно только наполнить водой и периодически её подливать
Теперь нужно подумать, как задержать воду в яме, если у вас болотистая местность, то уровень воды будет долго держаться в пруду, его нужно только наполнить водой и периодически её подливать.
В ином случае можно дно пруда засыпать слоем глины толщиной 10 – 15 см, глину нужно утрамбовать и засыпать песком, такой способ также очень хорошо будет задерживать воду в пруду.
Ещё есть вариант с гидроизоляционными материалом, можно уложить на дно котлована два слоя толстой полиэтиленовой пленки или геомембрану, это более совершенный и прочный материал, но обойдётся дороже полиэтиленовой плёнки.
Края пленки вдоль берега нужно обложить камнями, а саму плёнку засыпать почвой иначе гуси лапами её порвут.
Как я уже упоминал в начале статьи, очень важно обеспечить хоть какую то, циркуляцию воды в водоёме, иначе вода начнет цвести, издавать стойкий неприятный запах, по сути пруд со стоячей водой просто превратится в болото. Чтобы этого не произошло, нужно хотя бы раз в день подливать в пруд свежую воду, я подливаю воду в пруд с помощью шланга для полива огорода, забор воды у меня идёт из скважины обычным насосом
Чтобы этого не произошло, нужно хотя бы раз в день подливать в пруд свежую воду, я подливаю воду в пруд с помощью шланга для полива огорода, забор воды у меня идёт из скважины обычным насосом
Чтобы этого не произошло, нужно хотя бы раз в день подливать в пруд свежую воду, я подливаю воду в пруд с помощью шланга для полива огорода, забор воды у меня идёт из скважины обычным насосом.
В пруд периодически подсыпаю свежую ряску, гуси и утки её очень хорошо поедают и получают свою порцию зелёного корма.
В жаркие дни гуси практически целыми днями купаются, периодически пасутся на пастбище и чувствуют себя очень хорошо.

Нужен гусям пруд или нет? Я думаю, что нужен, ведь по сути это водоплавающая птица, и наличие водоёма благоприятно влияет на здоровье птицы.
На зиму воду из пруда уже можно спускать, а саму яму почистить от ила и прочего мусора.
Рекомендую посмотреть несколько видео, о прудах для гусей на домашних фермах птицеводов.
На видео показано строительство пруда для гусей из полиэтиленовой плёнки (автор видео Дамир Бикметов).
Ещё видео гуси на пруду.
Автор этого видео сделал водоём для своих гусей из старого линолеума.
Видео: Пруд для домашних уток
Место для водоема желательно выбрать в теньке, чтобы вода не слишком быстро испарялась, особенно, летом. Также желательно, чтобы туда не попадали листья с деревьев, так как на них могут развиваться различного рода паразиты.
Что касается материалом, то наиболее простым из них является обычная полиэтиленовая пленка. В любом случае, нужно выкопать большую, глубокую яму. Здесь действует принцип «Чем больше, тем лучше».
Дно этой ямы нужно заслать полиэтиленом, закрепить пленку по бокам и залить в этот своеобразный резервуар воду. Также можно приобрести специальную пластмассовую форму, под форму которой нужно будет выкопать углубление. Но в этих случаях возникнет проблема со сливом.
Птицы будут постоянно заносить в воду землю, что приведет к сильному загрязнению пруда. Вода также может протухнуть, создавая крайне неприятный запах. Чтобы поменять воду, нужно будет потратить немало сил на то, чтобы ее вычерпнуть из ямы или резервуара.

Но существует самый оптимальный и, одновременно, добротный вариант. Для создания пруда по такому плану нужно также выкопать яму, желательно, с плоским дном.
Как изготовить водоем для уток своими руками из шифера?
Если все же решились разводить данную живность, стоит начинать думать про их водоем. Чтобы соорудить самостоятельно такое место обитания, стоит выполнить следующие работы.
http:
Как таковых требований нет, главное, чтобы к нему был удобный подход. Для более масштабных бассейнов рекомендуется продумывать систему слива, ведь пруд на 300-700 литров осушить посредством ведер – далеко не легкая задача.
Далее проводится разметка участка. Если с такой работой ранее не сталкивались, то лучше всего выбирать геометрически правильную форму пруда, причем с углами. Таким образом, при помощи кольев и натянутой между ними нитки можно обозначить контур будущего водоема.
После этого выкапывается слой земли на очерченном участке. Сразу стоит отметить, что излишек земли необходимо сразу удалять, иначе те же самые утки разнесут его по всей даче. Глубина ямы должна быть равной ширине используемого шифера.
На этом этапе лучше всего использовать строительный уровень, так как важно, чтобы дно было идеально ровным. Сейчас необходимо еще раз подумать про слив, так как для него необходимо дополнительно оборудовать рядом еще одну глубокую яму. Что касается объемов, то они должны быть равными наполняемости пруда
Чтобы соединить эти две «емкости», вырывается траншея, в которую в дальнейшем будет происходить укладка сливной трубы. Тут стоит помнить, что такая конструкция потребует запорного механизма
Что касается объемов, то они должны быть равными наполняемости пруда. Чтобы соединить эти две «емкости», вырывается траншея, в которую в дальнейшем будет происходить укладка сливной трубы. Тут стоит помнить, что такая конструкция потребует запорного механизма.
Следующим этапом является установка шифера. Материал должен облицовывать стены котлована, а чтобы он был зафиксирован, используются отрезки труб. Для дополнительного укрепления используют уголки, которые необходимо вбить в землю. Это позволяет максимально защитить все стенки. От данного момента напрямую и будет зависеть, как долго утки будут находиться на своих местах, иначе они разбегутся. Кроме того, водоем может попросту расширить свои размеры и тогда, конечно, он шире станет, но станет и мельче.
После этого на низ укладывается еще один шифер. Это позволит сделать плавный заход в пруд.
http:
В целом при желании останется только сделать внешнее декорирование такого пруда. Например, выложить камнями ободок или просто сделать небольшой бордюр.
Необходимость
Водоем значительно сократит ежедневные затраты корма, так как эти пернатые кормятся ряской, мелкой рыбкой, водяными жуками. Утки, употребляя белковую пищу, помогут сэкономить на дорогостоящих пищевых добавках. Также отпадает потребность в поилках. Как сделать бассейн для уток своими руками? Об этом можно узнать в данной статье.
Водоплавающие птицы быстрее растут, и у них значительно крепче иммунитет, если имеется бассейн для водных процедур. Естественно, можно вполне обойтись и без водоема – просто выставить во дворе корыто с водой. Однако, сделать небольшой водоем для уток своими руками не так сложно, да и затраты фактически очень малые.

Живописный водоем
Если водоплавающие птицы будут иметь в своем распоряжении хотя бы маленький прудик, то это скажется на их развитии и качестве мяса. Если же утка растет без водоема, то ее мясо будет покрыто толстым жировым слоем, что отразится на его вкусе.
Вода является отличным средством профилактики против всевозможных паразитов, живущих в оперении птиц (пухопероеды). В жаркую пору птицы будут охлаждаться, плавая в воде.
Водоем для гусей своими руками – вполне выполнимая задача, которая по силам даже начинающему фермеру. Главное – выбрать подходящее место для купальни; оно должно быть с пологими спусками (для удобства пернатых).
Важно! Обязательно нужно поддерживать в бассейне порядок: регулярно менять воду, иначе он превратится в затхлое болото. От такого водоема уже никакой пользы не будет
Виды
В первую очередь для птиц следует устанавливать безопасную и удобную в эксплуатации конструкцию. В то же время она должна быть прочной и состоять из экологически чистых материалов. Для небольшого птичьего хозяйства кормушку можно сделать своими руками.
Самые популярные виды кормушек для индоуток:
- Для свежей травы. В любое время года утки нуждаются в зелени. В ней содержится много важных для пищеварения веществ. Также многие птицеводы ее используют для повышения вкусовых качеств мяса. Наиболее удобной для свежей зелени считается сетчатая конструкция. Она препятствует растаскиванию травы по всему птичнику. Для изготовления сетки лучше использовать прутки для плетения корзин или проволоку. Во избежание гниения травы следует сделать подвесную конструкцию;
- Для влажного корма. Влажные мешанки — важная составляющая рациона уток. На влажном корме птицы быстрее набирают вес и растут. Для него хорошо подойдут желобковые кормушки, которые изготавливаются из корыта небольшого размера. Конструкцию легко устанавливать, сборка основана на принципе желоба. Главным достоинством желоба является легкость в уходе, так как кормушки после влажного корма всегда необходимо тщательно мыть;
- Для сухого корма. Сухой корм является основой рациона уток. В нем содержится много питательных веществ и микроэлементов. Он не пачкает птичники, так как съедается птицами полностью. В качестве утиной кормушки для зерновых нужно использовать желобковые конструкции. Для удобства их можно оборудовать сеткой или решеткой. Так утки будут меньше пачкать корм и не смогут его раскидать. Многие фермеры для сухого корма используют бункерные кормушки. Благодаря частичной автоматизации они считаются очень удобными в хозяйстве;
- Для минеральных подкормок. Помимо основного корма утки, как и любые пернатые, нуждаются в дополнительных минеральных добавках. Для этой цели отлично подходят бункерные кормушки. Их можно дополнить отдельными секциями, в которые и будут насыпаться кормовые добавки;
- Для утят. Для молодняка лучше оборудовать отдельные приспособления для корма. В первую очередь при выборе конструкции следует учитывать подвижность молодняка и безопасность материала. Острые углы или необработанные края могут поранить утенка, поэтому для молодых особей рекомендуется использовать хорошо ошкуренные кормушки из дерева.
Требования к водоему для уток и гусей
Опытными птицеводами отмечено, что утята быстрее растут, буквально пышут здоровьем и радуют глаз своим чистым блестящим оперением, если купаются не в корыте или тазике, а в большом просторном пруду. Если поблизости нет естественного водоема, можно всегда сделать искусственный. Это не такая сложная задача, как может показаться на первый взгляд. Лучшим местом для пруда станет открытый участок, а вот располагать пруд в гуще раскидистых деревьев специалисты не советуют, поскольку впоследствии вода будет загрязняться опавшей листвой.

Больше всего повезло владельцам участков, расположенных в низинах, где глубина залегания грунтовых вод не превышает полутора-двух метров . В этом случае достаточно на 1 час нанять экскаватор и вырыть небольшой котлован, который тут же превратится в маленькое озеро.
При этом место для пруда следует выбирать с учетом того, что со временем утиное семейство будет размывать берега водоема — со временем он непременно станет больше в размерах и мельче.
Если до грунтовых вод далеко , то не обойтись без гидроизоляции. Оптимальным вариантом станет бутилкаучуковая или ПВХ-пленка, которая продается в рулонах разного размера и предназначена специально для создания искусственных водоемов.
Эти гидроизоляционные материалы абсолютно безопасны, они не наносит вреда экосистеме водоема, им не страшны высокие и низкие температуры. Срок службы такой мембраны — более 10 лет.
Что касается размеров пруда, то тут все зависит от возможностей и особенностей конкретного участка. Глубина водоема тоже может быть разной.
Уткам и гусям вполне достаточно и одного метра, однако если в перспективе планируется вместе с утками в пруду выращивать рыбу, то следует копать котлован как минимум на метр ниже глубины промерзания грунта (для средней полосы — 1,2-1,6м).
Это необходимо для зимовки рыбы.
Водоплавающие не представляют угрозы для рыб и не являются им конкурентами в питании. Утиный помет — пища для планктона и донных организмов, которыми охотно питаются те же карпы и караси.
Основной пищей для уток служит мягкая подводная и плавающая растительность, водные насекомые, головастики, мелкие лягушки и их икра. В результате активного развития естественной кормовой базы за счет совместного содержания рыбы и утки растут быстрее.
Главное требование к водоему — он не должен быть заболочен. Чтобы пруд не превратился в дурно пахнущее болото, необходимо организовать циркуляцию и фильтрацию воды.
ВИДЕО ОБЗОР
Определяем место и материалы
Цель поставлена, пора приступать к делу. Выбор материала зависит от масштабности задуманного проекта. Существует масса вариантов воплощения подобных построек, которые основываются на едином принципе – герметичности конструкции. Если в хозяйстве всего несколько водоплавающих, то нет смысла делать большой капитальный пруд.
Самый быстрый и экономный вариант, это бассейн из пленки
Что стоит учесть при определении места водоема:
- оставить проезд для машин;
- не перегораживать дорожки к значимым постройкам;
- не располагать рядом с забором из дерева, так как избыток влаги повлечет раннее гниение досок.
По возможности утеху для пернатых располагают в тени, чтобы влага быстро не испарялась. Лучше, если солнечные лучи будет загораживать какая-либо влагостойкая постройка. Дерево в этом случае станет худшим вариантом – опадающие листья приведут к большему размножению вредных микроорганизмов.
Самый простой способ сделать бассейн для гусей – соорудить его из пленки. Этот вариант позволит сэкономить бюджет и порадовать пернатых. Есть еще один незамысловатый вид конструкции – готовая пластиковая. Здесь придется понести некоторые затраты, вырыть землю и вставить приспособление на место. Оба метода обычно применяют для небольших птичьих бассейнов, а для масштабных построек используют качественный цемент и бетон.
Строительство капитального пруда
Строительство полноценного пруда потребует больше усилий. Располагать его следует там, где имеется источник воды. Для слива подготавливают сточную канаву и сливную яму. Если площадь участка не позволяет устроить слив, спасет ситуацию принудительная рециркуляция воды с использованием насоса.

Размер искусственного водоема для большого поголовья – не менее 2х3 м. При количестве гусей от 300 голов устраивают просторный бассейн – 6х8 м. Глубина – от 50 см. Дно делают с пологим уклоном, чтобы птицам было удобно спускаться. Для проведения работ потребуются:
- совковая и штыковая лопата;
- плотная пленка;
- цемент;
- гравий, песок, кирпичи, шифер для устройства дна и стенок.
Форма котлована может быть любой – обычно это круг, квадрат или прямоугольник, но можно выбрать и неправильную конфигурацию. На первом этапе выполняют разметку участка. Затем снимают верхний слой почвы. Если на участке плотный дерн, то его отряхивают от земли и оставляют — он пригодится для устройства стенок и краев. Затем котлован выкапывают на нужную глубину, предусматривая запас около 20 см на создание «подушки» из камня, щебня, кирпича.

На некотором удалении подготавливают сливную яму аналогичного объема. С небольшим наклоном прокладывают сточную канаву для слива воды – предусматривают запорный элемент, предотвращающий самопроизвольный отток жидкости.
Края укрепляют листами шифера или оставляют открытыми – вариант зависит от качества грунта (осыпается или нет). При большом размере купальни стенки укрепляют, прокладывая арматуру и цементируя ее. Площадь подготовленного котлована покрывают плотной пленкой – при большом объеме ее укладывают крест накрест в несколько слоев, чтобы перекрыть дно, стенки и края ямы. На дно насыпают камни, щебень, гальку или кирпичи. Стенки и окружающую площадку обкладывают плотным дерном, если он имеется. Края пленки присыпают землей, облицовывают камнями или галькой. С одной стороны устраивают пологий помост для спуска гусей в воду.
Капитальный утятник: как построить своими руками на даче, частном подворье
Вообще, как уже говорилось в начале статьи, для содержания уток подойдет любое помещение, например, небольшой сарай или хлев. Необходимо только утеплить стены, обеспечить поступление естественного света, ограничить попадание грызунов и возникновения сквозняков. Многие птицеводы держат уток зимой в теплицах.
В одном помещении можно содержать несколько видов домашней птицы. К примеру, куры и утки легко уживаются вместе. Но это при условии, что утиное поголовье небольшое – 6-10 особей. Если у вас больше 15 уток, для них придется выделить отдельное помещение или загон.
Перед тем, как начать строительство утятника, необходимо определиться с размерами.
Рассчитывайте площадь помещения исходя из того, что для содержания 2 уток необходим 1 квадратный метр площади, для молодняка – 1 кв м на 5 шт. Но даже если поголовье небольшое (5-10 особей) делать утятник слишком маленьким нельзя. Оптимальная площадь – 15-20 квадратных метров.
Сарай для уток не должен быть слишком большим и высоким. Этому виду домашней птицы не требуются насесты, как, например, курам, поэтому им не нужны высокие потолки. Оптимальный вариант – птичник с односкатной крышей, передняя стена которого будет составлять 1,8 метра, а задняя – 1 метр. Ниже на фото несколько чертежей и схема такого утятника.
Фундамент
Начинать строительство утятника следует с заливки фундамента. Так как помещение будет легким, то траншея под него копается на штык лопаты (25-30 см). Далее сооружается опалубка, затем в траншею насыпается слой смеси гравия и щебня. После этого заливается бетон.
Стены
Оптимальные материалы для стен – кирпич и дерево. Самый экономный вариант – соорудить каркас и обшить его досками. Снаружи щели в можно запенить монтажной пеной, а внутри пробить паклей.
Крыша
Крыша может быть любая. Если вам не требуется чердак, то лучше сделать односкатную. Крышу необходимо утеплить и закрыть все щели, через которые может попасть влага.
Не важно для каких пород (мускусных, индоуток, мулардов и т.д.) и для какого количества птицы вы строите помещение – на 10 уток или на 50 уток в любом случае оно должно быть теплым, сухим, с хорошей вентиляцией и освещением
Чертежи и материалы
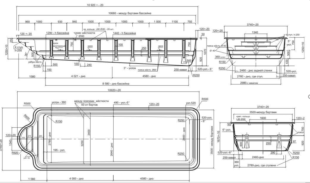
Капитальные утиные бассейны, требующие финансовых затрат, строят для водоплавающих, поголовье которых более 100 шт. Для справки — бассейн с размерами 7 на 7 м удовлетворяет потребности около 300 уток. Более объемные считаются нерентабельным, так как расходы на их постройку долго окупаются. Обычно большой водоем доверяют строить специалистам, умеющим работать по чертежам и схемам. Одним из примеров может быть водоем, возведенный по ниже приведенному чертежу.

Утиный бассейн в обязательном порядке должен быть оборудован системой слива. Для производства земляных работ применяется специальная техника, бетономешалка либо готовый бетон. Подсчитано, что бассейн с диаметром 6 м и более окупится за 4-5 лет. Но затраты на его сооружение могут позволить фермерские хозяйства, в плановом порядке занимающиеся разведением уток.
Далее выкапывается котлован, траншея для сливной системы и сама сливная яма. Объем последней должен быть такой же, или больший, как у создаваемого водоема. Значение имеет и определение ее места. Ее надо делать с большим заглублением.
Вырытую землю следует увезти как можно дальше. Если ее оставить рядом, то утки начнут в ней копошиться, превращая окрестности в болото. По периметру котлована выкладывается металлическая арматура, камни. Дно искусственного пруда бетонируется.

С применением опалубки и арматуры возводятся бетонные стены. Они, после высыхания, обрабатываются специальной грунтовкой для предотвращения протеканий и обеспечения длительного срока эксплуатации.
Края бассейна заделывают таким образом, чтобы птицы их не повреждали.
Пример создания капитального бассейна для водоплавающих:
Оправдает ли себя самодельная конструкция
Первой ступенью строительства чего-либо становится план
Важно также определить возможные достоинства и недостатки собственноручного изделия
Есть явные плюсы.
- Снижение затрат на корм . Новый пруд для уток и других водоплавающих птиц станет отличным источником пищи. Вода быстро притянет разнообразную живность. Такая еда богата необходимыми минералами и белком, за счет чего можно реально сократить затраты на закупку специальных добавок.
- Превосходство мяса . Зачастую встречается продукт из птицы с толстым слоем жира. Без «большой воды» утята склоны к накоплению таких масс, при ее наличии получается идеальная жировая прослойка, которая обеспечит наилучший вкус мясу.
- Отсутствие дополнительных трат на обустройство системы для питья (покупку поильников).
Минусов насчитывается не меньше, но они не так значительны в сравнении с плюсами.
Быстрое загрязнение . Утята и гусята мгновенно разносят всякий мусор, бесконтрольно опорожняются всюду. Даже без них стоячая вода склона цвести, а они лишь служат толчком для скорейшего загрязнения.
Своевременный уход . Упущение этого фактора привлекает разнообразие бактерий
Регулярная замена воды и чистка дна уменьшает процессы размножения вредоносных микроорганизмов, что очень важно для жизнеспособности птиц.
Сокращение полезной площади. Если участок земли с легкостью позволяет построить подобную конструкцию, то этот фактор из минусов исключается.
Дополнительные затраты на водные ресурсы
Этот критерий также не подлежит к рассмотрению как недостаток, если существует возможность бесплатного пользования водой. Примером доступности и экономии может служить ближайший родник.
Взвешивая все «за» и «против», четко видно – недостатков больше, но парочку из них большинство смогут смело исключать. Достоинства самодельного бассейна значительно преобладают. Остается только определиться с необходимыми объемами для конкретного случая.





























